OknaVrataTermo vrataNotranja vrataPoliceSenčilaAKCIJAReferenceKontakt
Ideal 4000 NOVI
Ideal 5000
Ideal 7000
Ideal 8000
Barvna karta PVC
LIGURIJA
PIEMONT
TOSKANA
LIGURIJA ALU
PIEMONT ALU
ALU MB-60
ALU MB-70
ALU MB-86
Steklo

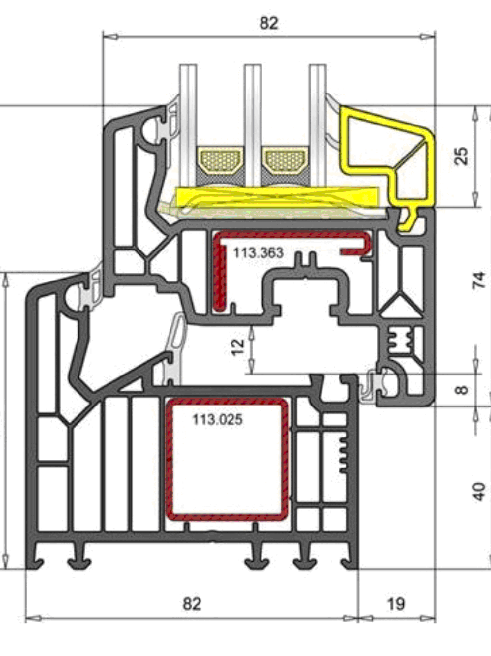
SOFTLINE 82 MD                                        

 PROFIL 7/8 komorni profil nemške blagovne znamke VEKA¬. Debelina sten 3mm - KLASA A.
Skupna širina 102mm, širina okvirja 82mm.
Posebna tehnologija varjenja za zagotavljanje boljše zrakotesnosti
1,5-
2,0 mm debela ojačitev iz 5-krat tlačenega pocinkanega jekla zaprtega tipa, zagotavlja večjo  stabilnost, optimalno delovanje in preprečuje deformacije oken.  

STEKLO trojna zasteklitev z nizkoemisijskim LOW E nanosom in s parametri visoke toplotne izolacije Ug=0,6 W/m²K. Vgrajen termodistančnik, ki zmanjšuje kondenzacijo in omogoča prihranek energije do 10%.

TESNILA tri tesnila, z odpornostjo na kakršenkoli vpliv atmosferskih razmer, kot so vlaga, prisotnost pare, UV sevanje in temperaturnih nihanj vse do -50°C. Četrto tesnilo                                    pozitivno vpliva na toplotne, zvočne in zrakotesne lastnosti.

OKOVJE varnostno okovje MACO s sistemom proti dvigu krila, ki zagotavlja največjo zrakotesnost. Vgrajen sistem proti kipu v odprtem stanju in vgrajen sistem mikroventilacije COMFORT AIR.

                         

 

 

.